Overview
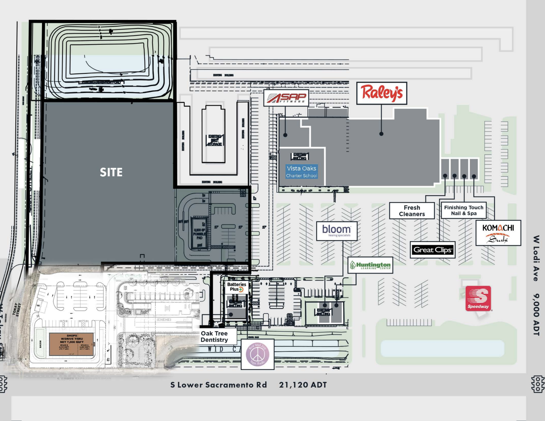
515 S Lower Sacramento Road is a premier 4.45-acre development opportunity in Lodi, offering up to 194,000 Sq Ft of building potential with planned 7,200 SF retail space.
The site is strategically positioned adjacent to established retail anchors including Raley's, Great Clips, Huntington Learning Center, and Speedway with 21,120 ADT traffic exposure. The property benefits from strong demographics with $118,349 average household income within 5 minutes and substantial residential growth including Rose Gate developments totaling 582 new homes.
- Status Parcel Available
- Available Sq Ft 194,000 Land
- Location Lodi, CA
- Available Parcels1
Property Brochure Download
Amenities
One Capitol Mall offers the following on-site and nearby amenities for the convenience and comfort of its tenants:
24/7 Onsite Security
For your peace of mind
Children's play area
Community Gym
Featuring Locker Rooms and Shower Facilities
Walkable Access
From Landmarks to Dining
Conference Room
Professional meeting space
Onsite Café
Serving Breakfast and Lunch
Monthly & Valet Parking
Monthly and valet parking on-site
Fitness Center
24/7 Onsite
Security
For your peace
of mind
Community
Gym
Featuring Locker
Rooms and
Shower Facilities
Walkable
Access
From Landmarks to Dining
Conference
Room
Professional
meeting space
Monthly &
Valet Parking
Monthly and
valet parking
on-site
Onsite
Café
Serving Breakfast and Lunch
Location
Address:
515 S Lower Sacramento Road
Lodi, CA
Nearby:
- Highway 99: 1.2 Mi
- Freeway I-5: 8 Mi
- SMF Airport: 46 Min
- Sunwest Shopping Center: 0.3 Mi
- Walmart: 6 Min Walk
- Lowes: 2-Min Walk
- Wine & Roses Resort & Spa: 3.2 Mi
- Target: 0.3 Mi
Property Inquiry
Looking for more information? Provide us with your information and we will be in touch soon!
Property Brochure Download
Contact Us
Get in touch with our team with the information below
PHONE
(916) 752-6607
Address
7919 Folsom Blvd Suite 120
Sacramento, CA 95826





